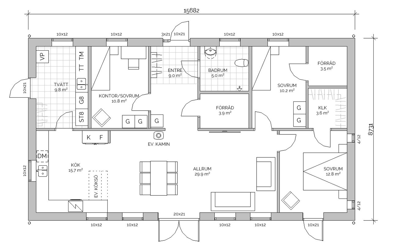
4 rum - 119 kvm - Lännestad 1:50 resp. 1:51 (1:52 är såld) - Härnäset
Nybyggnation av villor på Härnäset - massivträhus i klassisk design med naturen inpå knuten.
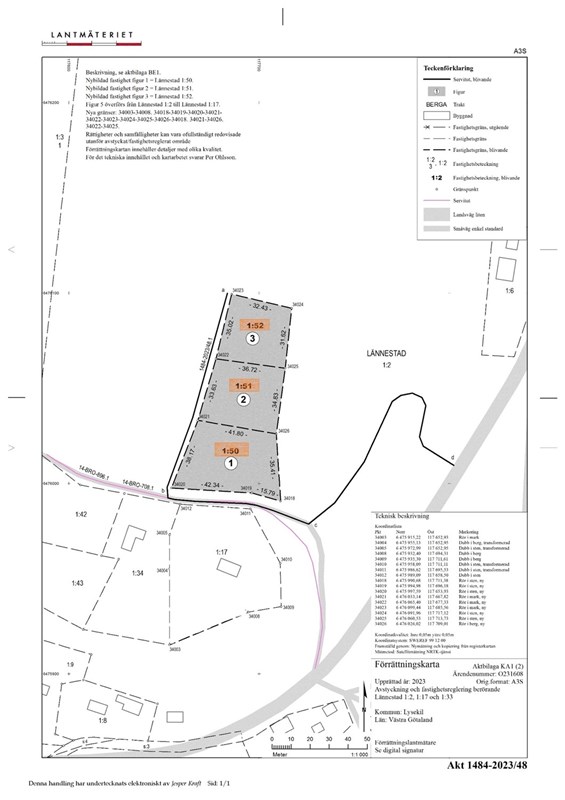
På vackra och omtyckta Härnäset erbjuds nu tre mycket vackert belägna fastigheter (varav en redan är såld) innefattande nybyggnation av hus till försäljning. Husen som uppförs ligger med högt och soligt läge mot Brofjorden och har naturen inpå knuten. De yteffektiva villorna passar lika bra som familjevilla året runt eller som fritidshus. Bostadshusen har en väl genomtänkt planlösning där ytorna nyttjas mycket effektivt. I utformning och design har stor hänsyn tagits till omgivande natur och husen vill smälta fint in i miljön. Husen uppförs i massivträ och stort fokus läggs på ljus, rymd, miljö, energieffektivitet och såklart komfort.
Det annonserade priset avser ett snyggt och modernt enplanshus, i enligt med illustrationsbilderna. Modellen heter Villa Bovik och är ett av Massivträvillans mest uppskattade modeller. Villa Boviks utformning är väl genomarbetad för att erbjuda bästa möjliga upplevelse. Villan går att få i utformningen av ett modernt ladhus alternatvit den klassiska och tidlösa villan med vit träfasad. Stor vikt har lagts vid klimatanpassning, yteffektiv planlösning och prisvärdhet. Husen kommer att anpassas väl med omgivande natur och samtidigt dagens krav på komfort och miljöanpassning. Massivträvillan har ett stort utbud av husmodeller i det fall du har önskemål om större bostad eller alternativ utformning. Friheten är stor och möjligheterna många. En tomt är redan såld och byggnation är påbörjad och skall färdigställas 2024.
Lokala och välrenommerade Andersson Nielsen AB i Brodalen har tagit fram detta husförslag med ett totalpris om 4 250 000, inkluderande tomt, inflyttningsklart hus inkluderande alla kostnader för vatten, avlopp och el. Ny väg kommer att anläggas upp till husen. Fiber kommer finns framdraget till tomtgräns för den som önskar ansluta sig till det.
Bostadsmodellen har ett tydligt uttryck med en modern design och stark karaktär, samtidigt som huset integreras väl i naturen. Generös takhöjd och rikligt ljusinsläpp präglar bostaden men det som framför allt vill uppskattas av dig är det natursköna läget, att få leva och bo tillsammans med naturen. Det bohuslänska landskapet präglar området med vacker natur, berg i granit, ängsmarker, åkrar och lummiga träd med bohuslänsk karghet.
Planlösningen är effektiv och disponeras med härliga sällskapsytor där vardagsrum och kök fint flyter samman i en öppen planlösning där det bjuds på ett härligt ljus från stora fönsterpartier vilket också ger fin utsikt över omgivande natur. Bostaden rymmer utöver kök och vardagsrum tre väl tilltagna sovrum samt rymligt helkaklat badrum. Tvättstugan, vilken ligger separat, är ljus och utrustad med tvättmaskin och torktumlare. Extra uppskattad lär bli att tvättstugan har en separat entré så det blir lätt att hänga ut tvätten. Att planlösningen är genomtänkt innebär också att man tänkt igenom förvaringen, både förråd och garderober är inplanerade.
Material och färgsättning är enhetlig och allt går i neutrala, mjuka toner. På golvet planeras en enhetlig parkett. Naturliga material kommer vara synliga på sina håll och ge karaktär. Stor hänsyn tas till miljö och viktigt är energieffektivitet. Husen byggs för att vara energisnåla och förses med frånluftsvärmepump. Som tillval kan du komplettera med braskamin för både värmetillskott och mys.
Fastigheterna kommer säljas separat samtidigt som ett entreprenadavtal tecknas med Andersson Nielsen AB i Brodalen om nybyggnation av enfamiljsvilla. Fastigheten (tomten) förmedlas av Fastighetsmäklaren men entreprenadavtalet tecknas separat med Andersson Nielsen AB. Angivet totalpris (där fastigheten dvs tomten förmedlas av fastighetsmäklaren och säljs separat) avser enfamiljsvillan VILLA BOVIK, se illustrationsbilder och leveransbeskrivning. Läs mer på: www.massivträvillan.se
Utöver bostadsbyggnad har tomterna plats för garage, altaner men också för barnens lek och äventyr. Köparen har därför viss möjlighet att vara med och bestämma viss val/utformning. Priset i annonsen avser fastigheten helt enligt leveransbeskrivningen.
Som köpare har du möjlighet att vara med och bestämma viss val/utformning, önskar du modifiera och addera till upplägget finns många tillval. Exempel kan vara loft inkl. trappa, bastu, köksö. Detta kommer du gemensamt kunna diskutera dig fram till tillsammans med Andersson Nielsen AB som kommer offerera tillval. Du kommer att kunna forma ditt boende utifrån dina önskemål, idéer och behov.
Dessa fastigheter tilltalar dig som vill leva med stor frihetskänsla och i ständig närhet till naturen. Året runt eller för en innehållsrik fritid. Närheten till hav och bad gör området lika populärt bland de som söker ett innehållsrikt fritidsboende som de som vill bo med naturen nära inpå, året runt. Boendet kommer att uppskattas av hela familjen, barn och hundar kommer stormtrivas och du som vuxen får en rik vardag och fritid njuta av.
Lännestad är beläget strax utanför Brodalen, tidigt på vackra Härnäset. I närområdet bor det såväl fritidsboende som permanentboende. Hela Härnäset erbjuder ett rikt natur-, bad- och båtliv med många badplatser, småbåtshamnar, vandringsleder, bär- och svampskogar. Följ en del av Kuststigen för att uppleva vacker natur till fots och ta gärna en paus vid lantliga Röe Gård för en god lunch i restaurangen och passa på att besöka dess mysiga butik. För den klättringsintresserade är hela Härnäset ett mecka med närheten till dess många klätterklippor. Kusten utanför är också mycket uppskattat hos de som paddlar kajak. Härnäset är således mycket populärt bland fritidshusboende men också för åretruntboende.
I närområdet finns service i Brastad och Lysekil, närmsta butik, välsorterade Ica To Go som är öppen dygnet runt, finns i Brodalen där du också har kommunikation till Göteborg och Oslo. Centrala Lysekil med dess utbud av affärer, restauranger och service nås på dryga 20 minuter, till kustsamhällena Smögen, Kungshamn och Hunnebostrand har du ca 3 mil, en halvtimma med bilen. Från Göteborg till Härnäset tar det cirka en och en halv timma och från Oslo tar det drygt två timmar.
Du är välkommen att kontakta mäklaren för visning, men det går också bra att åka ut och titta på egen hand. Säljaren har märkt ut de ungefärliga gränsdragningarna med band. Idag finns en mindre väg där du kan köra upp för att titta. Ny väg kommer att anläggas i samband med byggnationerna, se illustrationsbild.
----------------------------------------------------------------------
Välkommen att kontakta ansvarig fastighetsmäklare för mer information: Katarina Törnkvist, tel: 0702-400 535, katarina@lysekilsmaklarna.se
För mer information om husmodellen och byggnationen läs mer på www.massivträvillan.se . Du är också välkommen att kontakta:
Linn Nielsen, tel: 0523-42911, epost: linn@massivtravillan.se
Lars Nielsen, tel: 0523-42910, epost: lars@massivtravillan.se
Andersson Nielsen AB, tel: 0523 42080, www.andersson-nielsen.se.
Utgångspris
4 250 000 kr
Fakta
- Adress:
- Lännestad 1:50 resp. 1:51 (1:52 är såld), Brastad
- Bostadstyp:
- Friliggande villa
- Boarea:
- 119 kvm
- Antal rum:
- 4 rum
- Byggår:
- 2024
