Flatön 646 - Flatön
Nytt & snyggt i vacker kustmiljö! Bara 300 m från hav och bad byggs nu ett modernt enplanshus
Välkommen till vackra Flatön! Här erbjuds du en tomt vid havet i en vacker kustmiljö. Högt belägen och med endast 300 meter till bad är ett morgondopp aldrig långt borta. Med ett idylliskt läge på Flatöns södra sida kan du promenera förbi Handelsman Flink och över den lilla bron där du når Malön, hjärtat av Malö Strömmar. Området är lika populärt bland dem som söker ett innehållsrikt fritidsboende som hos dem som vill bo med havet och naturen inpå, året runt. Alla möjligheter finns för att skapa ett unikt och attraktivt boende. Att få bygga så här nära vattnet och i denna unika miljö är få förunnat.
Massivträvillan har skapat en modern villa som utstrålar enkelhet och funktionalitet, perfekt integrerat i den naturliga omgivningen. Med sin minimalistiska arkitektur och fasad i trä smälter huset harmoniskt in i den bohuslänska omgivningen och dess klippiga terräng. De stora glaspartierna ger en öppen känsla och släpper in rikligt med dagsljus, vilket suddar ut gränsen mellan ute och inne.
Villa Lunneberg är lika väl lämpad som ett bekvämt åretruntboende som ett stilrent fritidshus. Den gedigna konstruktionen i massivträ och den genomtänkta designen erbjuder hög komfort oavsett årstid. Med sitt välisolerade skal och energieffektiva fönster hålls värmen inne under kalla vintermånader, samtidigt som de stora glaspartierna släpper in rikligt med dagsljus för att skapa en ljus och luftig atmosfär året om.
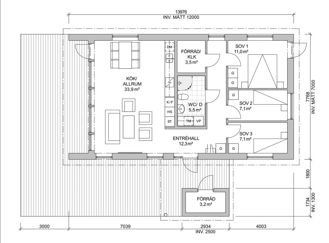
Priset inkluderar tomt med nyckelfärdigt hus, men möjligheterna är många, ni kan till exempel välja fler eller färre sovrum. Tillsammans med Massivträvillan kan ni skapa ert drömhem med de anpassningar ni önskar utifrån just era behov och husdrömmar.
Utöver bostadsbyggnad har tomterna plats för garage, altaner men också för barnens lek och äventyr. Du som köpare har stor möjlighet att vara med och bestämma hur du vill ha det, alltifrån små justeringar som material och färger till ett hus ritat exakt utifrån din vision. Priset i annonsen avser fastigheten enligt leveransbeskrivningen, se "Dokument".
Som köpare har du möjlighet att vara med och bestämma viss val/utformning, önskar du modifiera och addera till upplägget finns många tillval. Exempel kan vara loft inkl. trappa, bastu, köksö. Andra populära tillval är braskamin, altan och pergola. Detta kommer du gemensamt kunna diskutera dig fram till tillsammans med Massivträvillan som kommer offerera tillval. Du kommer att kunna forma ditt boende utifrån dina önskemål, idéer och behov.
Fastigheten kommer säljas separat samtidigt som ett entreprenadavtal tecknas med Massivträvillan i Brodalen om nybyggnation av fritidshus. Fastigheten (tomten) förmedlas av Fastighetsmäklaren men entreprenadavtalet tecknas separat med Massivträvillan. Angivet totalpris (där fastigheten dvs tomten förmedlas av fastighetsmäklaren och säljs separat) avser enfamiljsvillan VILLA LUNNEBGERG, se illustrationsbilder och leveransbeskrivning. Läs mer på: www.massivträvillan.se
Bakom Massivträvillan står Andersson Nielsen AB, ett byggkonsultbolag i Brodalen vilka har tagit fram ritningarna för Villa Lunneberg med ett totalpris om 5 475 000, inkluderande tomt, hus, markarbeten, anslutningsavgifter och väg. För exakt specifikation av vad som ingår, liksom vilka tillval som kan göras samt prisuppgift, kontakta Linn Nielsen på Massivträvillan, tel: 0523-42911, epost: linn@massivtravillan.se.
Utgångspris
5 475 000 kr
Fakta
- Adress:
- Flatön 646, Ellös
- Bostadstyp:
- Tomt
- Tomtyta:
- 1 106 kvm
 
                 
                                     
                                     
                                         
                                         
                                         
                                         
                                         
                                         
                                         
                                         
                                         
                                         
                                         
                                         
                                         
                                         
                                         
                                         
                                    