Rönnvägen 11 Mariedal
 
Budgivning pågår

3 rum - 111 kvm - Rönnvägen 11 - Mariedal

Stilrent & välvårdat parhus i Mariedal – med uterum, carport & närhet till havet!

Stilrent & välvårdat parhus i Mariedal – med uterum, carport & närhet till havet! Välkommen till Rönnvägen 11, ett mycket trivsamt och välskött parhus i 1½-plan, beläget i populära Mariedal i Lysekil. Här bor du med låga driftskostnader, renoverade ytor, uterum och en lättskött trädgård. Dessutom i ett lugnt kvarter med gångavstånd till skola, sport, affär och, inte minst salta klippor och havsdoft!

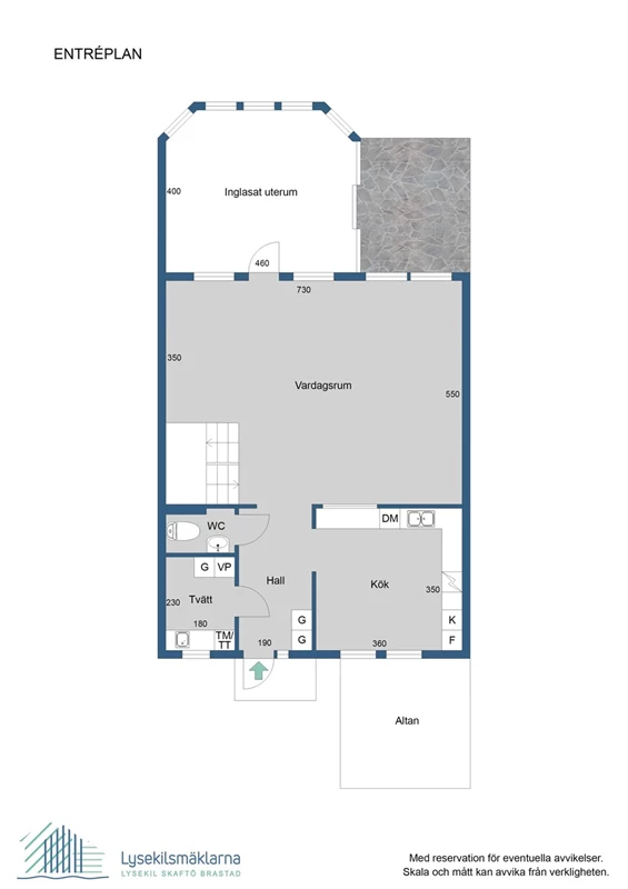
Välkommen in i en bostad som präglas av ljus, vilket märks redan vid ankomst. Du möts av en mycket fin ljus hall med praktiskt klinkergolv och bra förvaringsmöjligheter, Direkt till höger ligger det rymliga köket, ett kök med vit köksinredning i en lite lantlig stil. Luckorna är vita och bänkskivan är i massivt trä. Ovan arbetsytorna sitter ett vitt kakel och även kyl och frys samt ugn/spis och spiskåpan går i vitt. Allt är mycket snyggt och stilrent där bänkskivan och golv bryter av. Ett kök som är enkelt att tycka om från första stund. Dessutom är arbetsytorna verklig goda. Att köket upplevs som extra ljust beror delvis på den del ovan arbetsbänk som man öppnat upp mot vardagsrummet, det ger ett rikligt genomgående ljusflöde. Framför fönstret finns plats för matbord med plats för många.

Vardagsrummet är även det ljust vilket förstärks av det intilliggande vinterbonade uterummet som i sin tur leder ut till trädgården. Uterummet är oerhört fint med sin aning rundande form, liggande vitmålad träpanel, spröjsade fönster och hela tre glasdörrar att öppna upp mot trädgården. Detta är ett rum som garanterat kommer att älskas och utnyttjas under årets alla säsonger. Entréplanet rymmer också en praktisk tvättstuga samt en separat toalett.

En våning upp är det minst lika snyggt renoverat. Här finns två rejäla sovrum, ett stort klädrum och ett fint badrum, helkaklat i jordnära toner. Är du en familj som är i behov av fler sovrum så finns möjligheter på båda plan. Den som ser möjligheter, eller en byggare som kan sin sak, kan hitta lösningar att få till ett sovrum i del av vardagsrummet alternativt få till tre sovrum på övre plan.

Uteplatserna är flera och trädgården är lättskött, samtidigt som den ändå utgör en verkligt grön liten oas. På framsidan finns en insynsskyddad trälagd altan, avskärmad av ett vitt staket. På baksidan, utanför uterummet, finns en mysig uteplats direkt utanför. Det finns också en riktigt mysig stenlagd uteplats, i soligt västerläge, i trädgårdens bortre hörn. I trädgården växer det flertalet perenner; rosor, lavendel och pioner i flera färger. Gräsmattan omgärdas av en lagom hög häck.

Fastigheten är besiktigat med ett mycket fint besiktningsprotokoll, huset beskrivs som välvårdat och i bra skick, med endast normala åldersrelaterade noteringar.

Mariedal är ett lugnt och barnvänligt bostadsområde i norra Lysekil med närhet till både service och natur. Här finns skolor, lekparker, sportanläggningar, matbutik och goda bussförbindelser inom gångavstånd. Området är omtyckt för sin trygga miljö och trivsamma grannskap. Du bor dessutom bara några minuter från centrala Lysekil, den charmiga kuststaden vid Gullmarsfjordens mynning. Här väntar ett rikt småstadsutbud med restauranger, kaféer, butiker, bibliotek, vårdcentral och vackra strandpromenader. På sommaren blomstrar stadens kulturliv med evenemang, turism, bad, båtliv och klippklättring. Lysekil är minst lika attraktivt året runt för dig som söker ett aktivt liv nära natur och hav.

Ett lättskött hem med skön känsla och centralt men lugnt läge – bara att flytta in! Välkommen att boka din visning av Rönnvägen 11 i Lysekil.

Utgångspris

2 975 000 kr

 
Budgivning pågår

Fakta

Adress:
Rönnvägen 11, Lysekil
Bostadstyp:
Friliggande villa
Boarea:
111 kvm Information om areakälla
Antal rum:
3 rum
Byggår:
1975
Tomtyta:
377 kvm
Heidi Rönning

Ansvarig mäklare

Heidi Rönning

Reg. Fastighetsmäklare
0702- 44 03 08 heidi@lysekilsmaklarna.se
Katarina Törnkvist

Assisterande mäklare

Katarina Törnkvist

Reg. Fastighetsmäklare
0702-40 05 35 katarina@lysekilsmaklarna.se

Ekonomi

Pris

2 975 000 kr högstbjudande

Taxeringsvärde

Taxeringsvärdet är 1 988 000 kr varav byggnadsvärde 1 428 000 kr (fastställt 2024). 220, Småhusenhet, bebyggd.

Pantbrev

10 st om totalt 966 820 kr.

Driftkostnad

Driftkostnaden är ca 45 002 kr/år.
Fördelas enligt följande: uppvärmning 22 592 kr, försäkring 3 411 kr, vatten/avlopp 14 455 kr, renhållning 4 244 kr och samfällighet 300 kr.
I uppvärmningskostnaden ingår kostnad för hushållsel.
Fastighetsavgift: 10 074 kr/år.

Servitut, planbestämmelser m m

Gemensamhetsanläggning: Lysekil mariedal ga:2 ändamål: Vägar, Vattenförsörjning, Avloppsanläggning, Radio- TV och/eller tele, Grönområden, Garage och/eller parkering, Kvartersanläggning.

Planbestämmelser: Stadsplan (1975-09-09).

Fastigheten

Fastighetsbeteckning

Mariedal 1:177.

Typ

Friliggande villa. Parhus, 1½-plan.

Upplåtelseform

Friköpt.

Besiktigad

Ja.

Byggnadsår

1975.

Senaste renovering/ombyggnad

Nuvarande ägare förvärvade huset 1994

2007 renoverades Dusch/Wc på övre plan.
2008 byttes varmvattenberedaren.
2009 byttes fönstren. Samtidigt tilläggsisolerades gavelspetsen och kläddes med plåt.
2014 byggdes uterum.
2015 målades yttertaket.
2021 byttes luft/luftvärmepumpen.
2022 plåtades takkuporna om.

Jordfelsbrytare finns i huset.

Storlek

Boarea ca 111 kvm. Areauppgifter enligt taxeringsinformationen. 3 rum, varav 2 sovrum.

Byggnadssätt

Grund: Betongplatta på mark. Fasad: Tegel och plåt. Takbeklädnad: Korrugerad eternit. Fönster: 3- glas isolerfönster.

Kommunalt vatten och kommunalt avlopp.

Ventilation

Självdrag.

Uppvärmning och el

Uppvärmningssystem: Luft/luftvärmepump, direktverkande el via radiatorer och golvvärme.
Nätbolag: Leva iLysekil.
Elleverantör: Leva iLysekil. Elförbrukning: 12 000 kWh/år.

Energideklaration

Energideklaration utförd, 2025-06-19.
Energiklass E. Energiprestanda primärenergital 148 kWh/kvm år. Specifik energianvändning 76 kWh/kvm år.

TV- och internetanslutning

Internet: Fiber är installerat.

Övriga byggnader

Carport med förråd.

Tomt

Tomtarea 377 kvm.

Övrigt

Detta hus är förbesiktigat av Anticimex och säljs med en "Dolda fel-försäkring"
-
Det är alltid viktigt att ta del av besiktningsprotokollet. Besiktningsprotokoll finns att tillgå på visningen.

Bilder

Rönnvägen 11

Rönnvägen 11

Hall med golvvärme

Hall med golvvärme

Kök

Kök

Vardagsrum

Vardagsrum

Uterum

Uterum

Tvättstuga

Tvättstuga

Toalett, entréplan

Toalett, entréplan

Övre hall

Övre hall

Allrum, övre plan

Allrum, övre plan

Sovrum, övre plan

Sovrum, övre plan

Klädkammare, övre plan

Klädkammare, övre plan

Badrum, övre plan

Badrum, övre plan

Fastighetskarta

Fastighetskarta

Planlösningar

Planlösning, entréplan

Planlösning, entréplan

Planlösning, övre plan

Planlösning, övre plan

Karta

Intresseanmälan

Skicka
© Lysekilsmäklarna AB 2025