Tunnan 14 - Skaftö
Havsnära tomt, i gamla Grundund, med byggrätt i västerläge
Nu ges möjlighet att förvärva en obebyggd tomt med Grundsunds samhälles mest västliga läge - Tunnan 14. På Ösön, längst ut mot berget på vägen ut mot Hårsäcka, ligger denna ännu orörda bit mark redo att bebyggas, som sista tomt med endast klippor och berg mellan dig och havet.
En obebyggd tomt inom detaljplanerat område, mitt i Grundsunds äldre och pittoreska samhälle är nog unikt i sig, kanske den sista byggrätten i gamla Grundsund. Dessutom är tomten belägen längst ut mot bergen med öppet västerläge och rakt västerut har du hav och bad.
Med sitt upphöjda läge, drygt fem meter över gatunivå, vilar tomten som en harmonisk platå – inbäddad i samspel med den historiska bebyggelsen men ändå avskilt och insynsskyddat. Här får du ljus från alla väderstreck och berget i norr skapar en vacker, skyddande inramning.
Tomten vetter mot öppet landskap och berg, utan någon bebyggelse bortanför. Västerut breder himlen och havsljuset ut sig – här får du uppleva magiska kvällar och naturens skiftningar i all sin prakt. En plats där tystnaden och utsikten ger själen ro. Med sandaler och badrock promenerar du direkt från tomten och ut mot klipporna och mycket vackra Hårsäcka, ett av västkustens absolut bästa bad - sommarlyx! Du bor här lugnt och högt, lite för dig själv men ändå med närhet till sjöbodar, bryggor och livet i gamla Grundsund.
Rita ditt eget drömhus och ansök om bygglov utifrån din egen vision
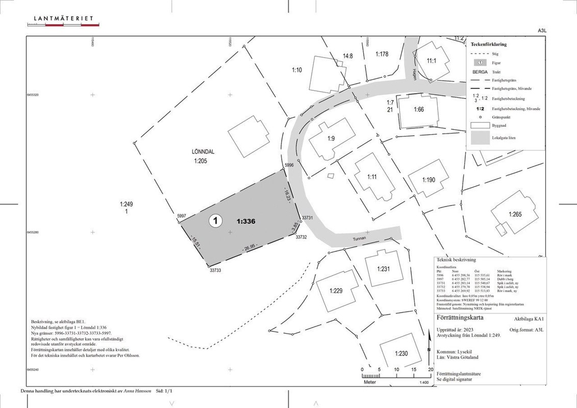
Under "Dokument" finner du detaljplanen i sin helhet. Däri kan läsa om den byggrätt som finns för denna tomt, liksom för övriga fastigheter i närområdet (Grundsunds gamla del). I enlighet med detaljplanen kan bostadshuset ha en byggnadsyta på 130 kvadrat (likt de närliggande husen som ligger i samma detaljplan). Så det står dig helt fritt att själv drömma och forma ett drömboende utifrån dina önskemål och behov. Se Lantmäteriets Förrättningskarta för se tomtgränserna. Se Nybyggnadskarta för att se byggbart område.
Det finns ett tidigare beviljat bygglov på ett mindre hus (ca 70 kvm) som vann laga kraft 2025-02-05. Från det datumet har man två år på sig att påbörja, dvs det gäller till 2027-02-04, se bifogat. Påbörjar ni byggnationer före det datumet har man fem år på sig att slutföra bygget, dvs till 2030-02-04. Önskar man bygga ett större hus behöver man ansöka om nytt bygglov (det kan göras direkt och du behöver alltså ej invänta att tidigare bygglov löper ut). Är du intresserad av dessa handlingar är du välkommen att ta kontakt med mäklaren.
Fastigheten nås både via gångstig nedifrån lokalgatan Tunnan och via grusväg med servitut – så du kan parkera bilen intill huset om du önskar. Via stigen genar du enkelt ner till bebyggelsen.
Försäljningen av Tunnan 14 är för dig som söker det verkligt unika – där det storslagna landskapet med sitt fantastiska ljus välkomnar dig. Det varma sommarljuset kvällstid är magiskt.
Trots det lite avskilda läget bor du mitt i pittoreska Grundsund, med kort promenadavstånd ner till det gamla fiskesamhället med bryggor och fina hamnpromenader, sjöbodar, båtar och bad. Du har endast ett par hundra meter ner till Västra kajen med kanalen och dess båtliv och fina restaurangen Smultron & Tång.
För ”världens finaste klippbad" fortsätter du från tomten den lilla stigen västerut och kommer till Hårsäcka med vidunderlig natur och härliga bad där klipporna stormas av havet som slår in (Läs mer under Dokument & Länkar). Önskar du mer barnvänligt går du förbi kyrkan ner till ”Klyftan”. Du har även cykelavstånd till barnvänliga Bökeviks badplats i Fiskebäckskil.
På andra sidan, Östra Kajen, förbi omtyckta restaurangen Pelles rökeri, promenerar du vidare längs kajen och följer en underbar strandpromenad längs havet och klipporna som avslutas vid fina badplatsen i Vigerna. För den naturintresserade finns en av vandringslederna alldeles i närheten: den lite utmanande Skuddevigeleden med hänförande utsikt och spännande sprickgrotta.
I Grundsund finns också en bra matvarubutik (öppen året runt), där du bland annat kan köpa fredagsräkorna, café, restauranger samt ett par trevliga kläd- och inredningsbutiker, förskola/ skola, bibliotek med mera. Skaftö och Grundsund erbjuder massor att utforska för den som inte är bekant med området.
Lysekil når du med bil eller så tar du färjan Carl Wilhelmsson från Fiskebäckskil. För dig som är golfintresserad finns populära golfbanan Skaftö golfklubb i närområdet. Till Uddevalla/ Torp har du en knapp halvtimma och därifrån har du ca 45 minuter till Göteborg, till Svinesundsbron har du knappt en timma med bil och till Oslo tar du dig på cirka två timmar.
För byggrätt och övrig information vänligen se vidare bland Bilder & Dokument längre ner på sidan, där hittar du detaljplanen med tillhörande planbestämmelser samt länkar till flera bra och informativa sidor för dig som vill bygga nytt..
Du är välkommen att boka tid för visning men du kan förstås själv åka ut och titta på tomten på egen hand.
Utgångspris
4 600 000 kr
- Budgivning pågår
Fakta
- Adress:
- Tunnan 14, GRUNDSUND
- Bostadstyp:
- Tomt
- Tomtyta:
- 540 kvm
